Dachterrassenwohnung in Pentling – Neubau
Eckdaten
- Art Penthouse
- Lage 93080 Pentling
- Kaufpreis 669.800,00 €
- Wohnfläche ca. 134 m²
- Zimmer 4
- Baujahr 2025
- Etagenzahl 3
- Etage 3
- Alt-/Neubau Neubau
- Heizungsart Fußbodenheizung
- Stellplatztyp Aussenstellplatz Tiefgarage
- Stellplatzanzahl 1
- Stellplatzkaufpreis 9.000,00 €
- Garagenkaufpreis 25.000,00 €
- Garagenanzahl 1
- Bezugstermin Ende 2026
- Bodenbelag Fliesen Parkett
- Ausstattung des Bades Fenster Badewanne Dusche
- Zustand Erstbezug
- Immobilien-ID 5907
Immobilie
Die 4-Zimmer-Penthousewohnung befindet sich in einem Mehrfamilienhaus mit Tiefgarage und Keller, welches als KfW Effizienzhaus 40/QNG und in hochwertiger, solider Massivbauweise erstellt wird.
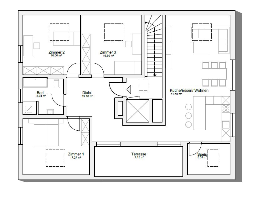
Sie betreten die Wohnung in der Diele. Geradeaus gelangen Sie in das Tageslichtbad mit Badewanne, begehbare Dusche, Toilette und Waschbecken. Rechter Hand befinden sich zwei große Kinderzimmer. Linker Hand befindet sich das Schlafzimmer. Der großzügige Koch-/Ess- und Wohnbereich (ca. 45 m²) mit Zugang zur ca. 14 m² großen Dachterrasse (in der WFL mit 50 % eingerechnet), befindet sich auf der Rückseite des Wohnungseinganges. Die Speise bzw. der Abstellraum befindet sich gleich neben der Küche.
Das Objekt ist mit einem Personenaufzug ausgestattet. Zu der Wohnung muss ein TG-Stellplatz sowie ein Außenstellplatz dazu erworben werden.
Der Kaufpreis für die Wohnung teilt sich wie folgt auf:
Wohnung: € 669.800,-
2 TG-Stellplätze € 50.000,-
Gesamtkaufpreis: € 719.800,-
Provisionsfrei!!!
Lage
Pentling ist eine Gemeinde im Oberpfälzer Landkreis Regensburg in Bayern. Die Wohngemeinde ist eine Stadtrandgemeinde südwestlich von Regensburg. Das Neubauvorhaben befindet sich im Ortsteil Großberg.
Es besteht eine hervorragende Anbindung an die öffentlichen Verkehrsmittel. Es gibt Rad- und Wanderwege, sowie umliegende Wälder die zur Naherholung einladen.
Die Nahversorgung ist durch ortsansässige Supermärkte und Ärzte gegeben. Pentling verfügt über eine Grundschule, einen Kindergarten sowie eine Kindertagesstätte.
Der Regensburger Dom ist ca. 9,9 km, der Hauptbahnhof Regensburg ca. 9,4 km, das Jahn-Stadion ca. 6,6 km und die Universität ca. 5,9 km vom Objekt entfernt.
In nur wenigen Minuten erreichen Sie die A93 Richtung Hof und Wolnzach. Die A3 in Richtung Nürnberg und Passau erreichen Sie in ca. 6 Minuten.
Ausstattung
– Massiv-Ziegelbauweise KfW 55-Energie-Effizienz-Standard
– Kunststoff-Fenster 3-fach verglast
– elektrische Rollos an allen Fenstern (mit Ausnahme von je einem Rettungsfenster in jeder Einheit)
– dezentrale Einzelraumlüfter über den Rollokästen oder in der Fensterlaibung
– Heizung = Pelletheizung
– Fußbodenheizung in allen Räumen (außer Flur und Abstellraum) einzeln temperierbar
– Fertigparkett 3-Stab in Eiche-Echtholz geölt "Schiffsboden" in allen Wohn- und Schlafräumen
– Sichtdachstuhl in den Penthouse-Wohnungen
– hochwertige Badausstattung
– Waschmaschinen-'Anschluss im Keller, alternativ in der Wohnung möglich
– Balkone und Terrassen mit Betonplatten Belag
– Dachterrassen erhalten einen Lärchenholz-Belag
– Video-Gegensprechanlage
– Personenaufzug
– Tiefgarage
– Außenstellplätze
– ein Kellerabteil je Wohnung gefliest
Energieausweisangaben
- Heizungsart Fußbodenheizung
- Befeuerung / Energieträger Pellet
Rechtliches
provisionsfrei
Herzlichen Dank für Ihre Anfrage.
Wir werden diese so schnell wie möglich bearbeiten.
